Habitatges a Sant Just Desvern
Habitatges a Sant Just Desvern
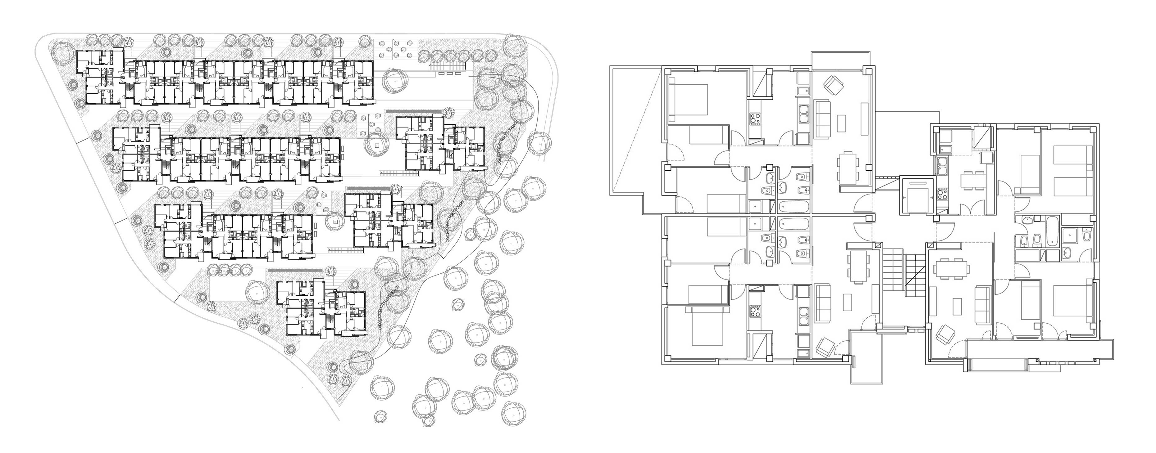
La implantació pretén la permeabilitat visual del conjunt cap a l'Oest, així com l'adaptació a la topografia del terreny actual. Es proposen dos tipus d'edificacions: tres cossos linials que, a través de la seva configuració afavoreixen tant la continuitat de les visions, com una escala d'implantació domèstica però clara, i tres edificis puntuals que donen a la part Sud, la més allunyada de la Masia de Can Candeler.
Housing in Sant Just Desvern
The implantation aims for the visual permeability of the ensemble to the West, as well as the adaptation to the existing topography. Two different types of edifications are proposed: three linear volumes that, through their configuration favour visual continuities, as a domestic but clear implantation scale, and three punctual buildings that look to the southern side, the furthest from Can Candeler’s House.
Viviendas en Sant Just Desvern
La implantación pretende la permeabilidad visual del conjunto hacia el Oeste, así como la adaptación a la topografía del terreno actual. Se proponen dos tipos de edificaciones: tres bloques lineales que, a través de su configuración favorecen tanto la continuidad de las visiones, como una escala de implantación doméstica pero clara, y tres edificios puntuales que dan a la parte Sur, la más alejada de la Masía de Can Candeler.
Publicacions
“AB. Arquitectes de Barcelona”, nº59, pàg. 6,D. Legal: B-9806-86, Barcelona, 1997
“AB. Arquitectes de Barcelona”, nº59, pàg. 6,D. Legal: B-9806-86, Barcelona, 1997
Any: 1997 - 1999
Autors: Pere Joan Ravetllat, Carme Ribas
Col·laboradors: Ramon Auset (arquitecte tècnic), Static (estructures), Pere Largo (instal·lacions)
Fotografies: Lourdes Jansana
Autors: Pere Joan Ravetllat, Carme Ribas
Col·laboradors: Ramon Auset (arquitecte tècnic), Static (estructures), Pere Largo (instal·lacions)
Fotografies: Lourdes Jansana